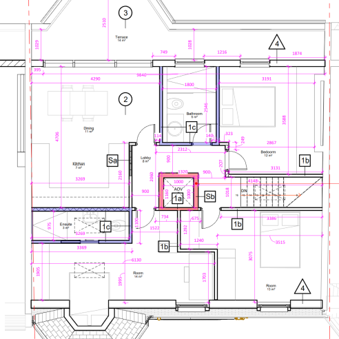
Loft extension and flat enlargement
RIBA Stage: 0-5

The property is an Victorian double fronted mid terrace house arranged as 12 studio apartments, located in West Hampstead, Camden.
The brief was to convert the roof space, enlarging one apartment into a three-bedroom penthouse. Having prepared the drawings and gained planning approval, our studio supported the client with the tendering process and construction phase. Most of the studio apartments have been renovated, all windows have been replaced with like-for-like double glazing and the fire safety measures have been upgraded to meet current Building Regulation compliance.






